FIELD ARCHITECTS
About
Services
Portfolio
Process
Sketchbook
Client Testimonials
FAQ's
Contact
Follow Us On
FARMHOUSE LANDSCAPING & OUTBUILDINGS
LOCATION: LEDBURY
PROJECT INFORMATION
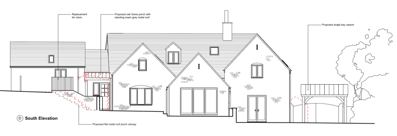
External landscaping and agricultural outbuildings for a Farmhouse in rural Herefordshire.
SCROLL TO PROJECT GALLERY
DISCUSS YOUR PROJECT
PROJECT GALLERY
All
Photographs
Drawings